- 株式会社レオホーム
- 新築一戸建てをエリアから探す
- 富岡市
- 七日市
- ◆富岡市七日市 KP2 1号棟






富岡市七日市 新築一戸建て建売分譲住宅
【1号棟】
西富岡駅まで徒歩350m、南西の角地で日当たり良好!駐車スペースは楽々3台以上可能です。
地震に強い耐震等級3などの性能評価を取得した建物は、全居室明るく収納付き、キッチンパントリーや主寝室のウォークインクローゼット、広々としたインナーバルコニーがあり、とても便利です。
ピカピカの新築住宅で、新しい生活をスタートしませんか?
【1号棟】
西富岡駅まで徒歩350m、南西の角地で日当たり良好!駐車スペースは楽々3台以上可能です。
地震に強い耐震等級3などの性能評価を取得した建物は、全居室明るく収納付き、キッチンパントリーや主寝室のウォークインクローゼット、広々としたインナーバルコニーがあり、とても便利です。
ピカピカの新築住宅で、新しい生活をスタートしませんか?
担当スタッフより

- 物件担当
- ■物件販売中は、平日でも週末でも、ご連絡下さい。
■現地待合せで、お気軽に見学可能です♪
・・・見学コース・・・・・・・・・・・
①ちょこっと見学 20分~
(ちょっと見てみたい方)
②しっかり見学 40分~
(説明も交えて見たい方)
③知りたい見学 50分~
(購入に関するの事を知りたい方)
・・・・・・・・・・・・・・・・・・・
>>> 見学日:平日でも週末でも
>> 開催時間:10:00~17:00
> その他、時間外でもご相談ください。
※極力、お客様のご都合に合わせますが、先約などがある場合もございます。
※物件は流動的な為、売れてしまう場合や突然の価格変更などもございます。お手数をですが、お電話にてご確認下さい。
不動産購入は、分からないことが多いかと思います。現地見学ついでに購入に関して、いろいろとお勉強しませんか?
もちろん、お電話のみでの無料相談も随時受付中です。不動産に関することは、単に確認したいだけでも、お気軽にご相談下さい。
物件詳細情報
物件No.20000423226
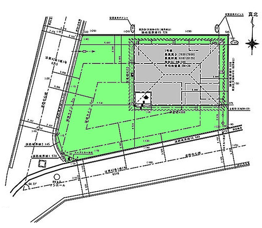
| 所在地 | 群馬県富岡市七日市 | ||
|---|---|---|---|
| 交通 | 上信電鉄「西富岡」駅350m | ||
| 間取 | 4LDK | ||
| 土地面積 | 199.62m² 公簿 (60.38坪) | ||
| 建物面積 | 113.43m² (34.31坪) | ||
| 販売戸数 | 1戸 | 総戸数 | 全1戸 |
| 構造・規模 | 木造 2階建て | 築年・入居 | 2025年7月 |
| 建物現況 | 完成済 | 建築確認番号 | HPA-25-02242号 |
| 駐車スペース | 3台以上(カースペース) | 引渡時期 | 即引渡可 |
| 地目 | 宅地 | 用途地域 | 第一種中高層住居専用地域 |
| 建ぺい率 | 60% | 容積率 | 200% |
| 都市計画 | 未線引区域 | 権利種類 | 所有権 |
| 接道 | 南側4M公道に接道 西側4.2M公道に接道 |
小学校区 | 東小学校(1030m) |
| 中学校区 | 東中学校(1720m) | 取引態様 | 一般 |
| 設備 | 公営水道、本下水、都市ガス | ||
こだわり項目
角地整形地平坦地閑静な住宅地地盤調査済南側道路LDK15帖以上庭床下収納全居室収納複層ガラス設計住宅性能評価付建設住宅性能評価付(新築時)浄水器省エネ給湯器ガスコンロシステムキッチンカウンターキッチンパントリー(食器・食品の収納庫)トイレ2ヶ所温水洗浄便座節水型トイレシャワー付洗面台浴室乾燥機浴室暖房追焚機能浴室1坪以上浴室に窓オートバス全居室フローリングウォークインクローゼットバリアフリー仕様TVモニタ付インターホン24時間換気システム陽当り良好フラット35Sに対応
- ※価格は物件の代金総額を表示しており、消費税が課税される場合は税込み価格です。(1,000円未満は切り上げ。)
税率は引き渡し時期により異なりますので、各物件の詳細につきましてはお問い合わせください。 - ※敷地権利が借地権のものは価格に権利金を含みます。
- ※制作中に内容が変更される場合もありますので、あらかじめご了承ください。
- ※購入の前には物件内容や契約条件についてご自身で十分な確認をしていただくようにお願いいたします。
- ※完成予想図はいずれも外構、植栽、外観等実際のものとは多少異なることがあります。
- ※CG合成の画像の場合、実際とは多少異なる場合があります。
周辺地図
- オープンハウス
- 2026年1月5日(月)〜12月27日(日) 10:00〜17:00 事前に必ずお問い合わせください現地からのご連絡の場合、スタッフの移動に時間が必要です。
周辺施設一覧
- ショッピングセンター
- スーパー
- コンビニ
- ドラッグストア
- ホームセンター
- 飲食店
- その他店舗
- 商店街
- 大学
- 専門学校
- 高校・高専
- 中学校
- 小学校
- 保育園
- 幼稚園
- 公民館・児童館
- 病院
- 郵便局
- 役所
- 図書館
- 金融機関
- 警察・消防
- 趣味・娯楽施設
- 公園・運動施設
- 周辺の街並み
- 駅
- その他
お問い合せ先
- 株式会社レオホーム
- お電話でのお問い合わせは
0120-33-2205「ホームページを見た」とお問い合わせください - 群馬県高崎市中居町1-21-3
- 営業時間:9:30~18:30
- 免許番号:群馬県知事(3)第7314号
- 株式会社レオホーム
- 新築一戸建てをエリアから探す
- 富岡市
- 七日市
- ◆富岡市七日市 KP2 1号棟

























